记者从上海嘉定新城发展有限公司了解到,2018年开工建设的上海首批、嘉定首个纯租赁住房项目嘉荷新苑目前已经基本完工,计划在今年底前交付。
嘉荷新苑项目位于双丁路、云谷路路口,共建设有6幢16至29层的高层住宅楼,可提供房屋1120套。目前,房屋主体、小区绿化以及地下空间设施的建设都已基本完工,施工人员正在摊铺沥青路面并进行其他附属工程的收尾工作。

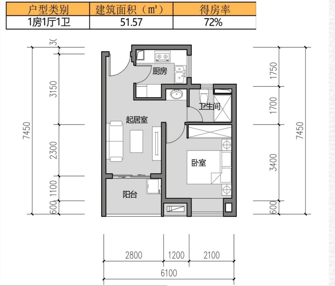
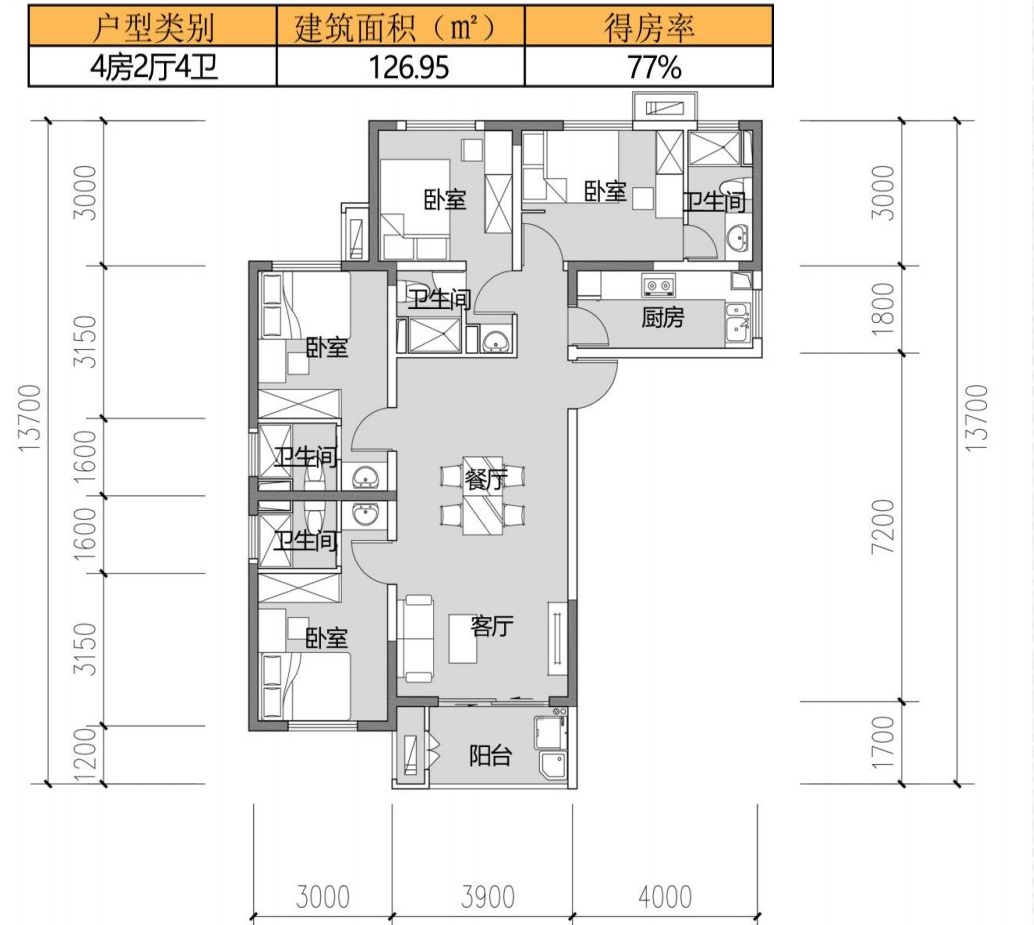
与一般住宅不同的是,作为租赁式房型,在设计建设之初,有关方面就充分考虑了不同客户群的需求,有一房一卫、两房两卫、四房四卫等不同房型。上海嘉定新城发展有限公司规划部主任刘翅表示,小区房型在兼顾开放共享的同时,也注重提升租住人居住的归属感,“例如四房四卫的房型,可服务于同一单位、关系比较密切的同事。我们还在每个房间设置了单独的卫生间,既能满足同住需求,也能保护个人隐私。”



户型图
小区内还建设有574个地下停车位,地上地下总停车位629个。交付时,住房内厨房电器、电视机、洗衣机以及家具等必要的生活设施都将配置齐全,租户可实现拎包入住。



据了解,嘉荷新苑将采取只租不售的方式,由上海嘉定新城发展有限公司统一运营,优先为区内各类创新创业人才和高层次人才提供居住配套服务。
撰稿:张健
摄像:付天豪
通讯员:毛佳凯
编辑:唐敏、徐宇
