近日
月浦镇
首个大型商业综合体
月浦融创精彩天地
正式开工啦!


效果图
据悉
该项目建筑面积达五万平方米
预计2023年底正式营业

月浦融创精彩天地位于蕰川公路、月罗公路交叉口西北角。与一般商业综合体不同的是,融创精彩天地首先力争打造社群中心,而后才是购物中心,通过空间主题、业态组合、美陈景观、价值主张等多方面塑造形成的生活方式中心,突出绿色、共享、商业理念,希望成为推动Shopping向Lifestyle转变的创新产物。


效果图
月浦镇相关工作人员介绍,目前,月浦核心区域商业配套比较缺乏,近距离的商业配套基本都是沿街商铺和社区商业为主,“附近的商业配套体量较小,入驻品牌的数量和影响力也比较有限,基本上以超市餐饮为基础,只能满足居民基本的生活需求。”

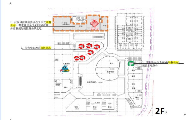
一楼:轻零售为主

二楼 :中式餐饮

三楼 :健身+配套+餐饮

四楼:电影院为核心娱乐业态
据了解,融创精彩天地包括大型综合超市、 餐饮、电影院、儿童主题功能,预计餐饮占比百分之四十、零售百分之七、生活配套百分之十七、亲子百分之十四、影院百分之十八、超市百分之四。
月浦融创精彩天地开业以后,将满足周边居民消费、娱乐需求。“得知有一些‘网红店’和大型电影院即将入驻,这让我们特别开心。”家住沈巷社区的张先生对大型商业体的建成表示期待。
记者:孙小尘
编辑:余婧瑶
*转载请注明来自上海宝山官方微信