依据《上海市建设工程设计方案规划公示规定》的要求,由上海市宝山区规划和自然资源局监督,宝山区祁南二村47号、泗塘四村9号、通河六村121号、共康七村207号、集贤路501弄107号单元楼等多层住宅加装电梯项目设计方案进行公示。

01
公示名称
宝山区祁南二村47号单元楼多层住宅加装电梯项目设计方案

公示网站:宝山区政府门户网站
公示现场地点:祁南二村小区公示栏
公示期限:2021年7月5日至2021年7月14日
收集意见截止期:2021年7月21日
意见反馈途径
(1)信函方式:宝山区规划和自然资源局,通讯地址:上海市宝山区宝林路45号105室,邮政编码:201999,电子信箱:fangangongshi@163.com(邮件名称、主题中应标明公示名称)
(2)上海市宝山区罗店镇人民政府,通讯地址:沪太路6655号,邮政编码:201908,电子信箱:jinlodian@163.com(邮件名称、主题中应标明公示名称)
项目情况咨询
上海市宝山区祁南二村第二届业主委员会,联系电话:021-36509132,通讯地址:上海市宝山区祁南二村49号101
02
公示名称
宝山区泗塘四村9号楼既有多层住宅加装电梯项目设计方案

公示网站:宝山区人民政府门户网站
公示现场地点:宝山区泗塘四村小区公示栏
公示期限:2021年7月5日至2021年7月14日
收集意见截止期:2021年7月21日
意见反馈途径
(1)信函方式:宝山区规划和自然资源局,通讯地址:宝山区宝林路45号105室,邮政编码:201999,电子信箱:fangangongshi@163.com(邮件名称、主题中应标明公示名称)
(2)上海市宝山区张庙街道办事处,通讯地址:上海市宝山区呼玛路800号,邮政编码:200431,联系电话:021-36110877
项目情况咨询
上海市宝山区泗塘四村南块业主委员会,联系电话:021-56993725,通讯地址:上海市宝山区泗塘二村68号104室
03
公示名称
宝山区祁南二村42号单元楼多层住宅加装电梯项目设计方案

公示网站:宝山区政府门户网站
公示现场地点:祁南二村小区公示栏
公示期限:2021年7月5日至2021年7月14日
收集意见截止期:2021年7月21日
意见反馈途径
(1)信函方式:宝山区规划和自然资源局,通讯地址:宝山区宝林路45号105室,邮政编码:201999,电子信箱:fangangongshi@163.com(邮件名称、主题中应标明公示名称)
(2)上海市宝山区罗店镇人民政府,通讯地址:沪太路6655号,邮政编码:201908,电子信箱:jinlodian@163.com(邮件名称、主题中应标明公示名称)
项目情况咨询
上海市宝山区祁南二村第二届业主委员会,联系电话:021-36509132,通讯地址:上海市宝山区祁南二村49号101
04
公示名称
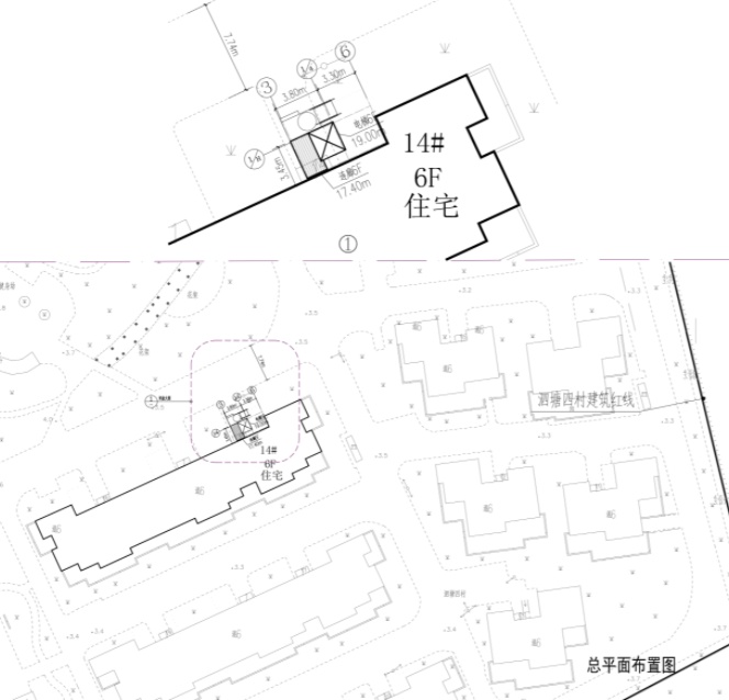
宝山区泗塘四村14号楼既有多层住宅加装电梯项目设计方案

公示网站:宝山区人民政府门户网站
公示现场地点:宝山区泗塘四村小区公示栏
公示期限:2021年7月5日至2021年7月14日
收集意见截止期:2021年7月21日
意见反馈途径
(1)信函方式:宝山区规划和自然资源局,通讯地址:宝山区宝林路45号105室,邮政编码:201999,电子信箱:fangangongshi@163.com(邮件名称、主题中应标明公示名称)
(2)上海市宝山区张庙街道办事处,通讯地址:上海市宝山区呼玛路800号,邮政编码:200431,联系电话:021-36110877
项目情况咨询
上海市宝山区泗塘四村南块业主委员会,联系电话:021-56993725,通讯地址:上海市宝山区泗塘二村68号104室
05
公示名称
宝山区集贤路501弄107号单元楼多层住宅加装电梯项目设计方案

公示网站:宝山区政府门户网站
公示现场地点:集贤路501弄小区公示栏
公示期限:2021年7月5日至2021年7月14日
收集意见截止期:2021年7月21日
意见反馈途径
(1)信函方式:宝山区规划和自然资源局,通讯地址:宝山区宝林路45号105室,邮政编码:201999,电子信箱:fangangongshi@163.com(邮件名称、主题中应标明公示名称)
(2)上海市宝山区罗店镇人民政府,通讯地址:上海市宝山区沪太路6655号;邮政编码:201908;电话:56591336
项目情况咨询
上海市宝山区集贤路501弄业主委员会,联系电话:021-66866269,通讯地址:上海市宝山区集贤路501弄133号
06
公示名称
宝山区共康七村207号单元多层住宅加装电梯项目设计方案

公示网站:宝山区政府门户网站
公示现场地点:共康七村小区公示栏/电梯加装楼公示栏
公示期限:2021年7月5日至2021年7月14日
收集意见截止期:2021年7月21日
意见反馈途径
(1)信函方式:宝山区规划和自然资源局,通讯地址:宝山区宝林路45号105室,邮政编码:201999,电子信箱:fangangongshi@163.com(邮件名称、主题中应标明公示名称)
(2)上海市宝山区庙行镇办事处,通讯地址:上海市宝山区长江西路2699号,邮政编码:200443,联系电话:021-66981101
项目情况咨询
上海市宝山区共康七村(北块)业主委员会,联系电话:021-56428936,通讯地址:上海市宝山区共康七村163号旁
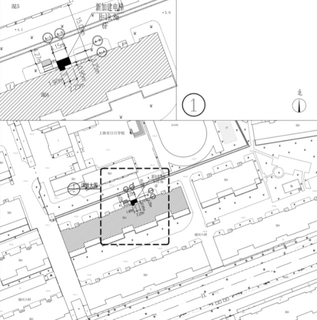
07
公示名称
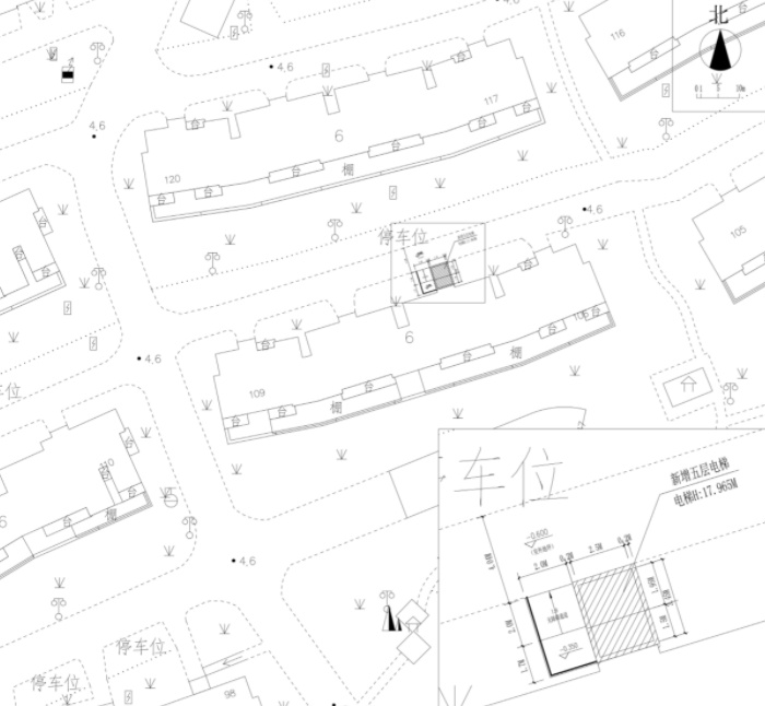
宝山区通河六村108号多层住宅加装电梯项目设计方案

公示网站:宝山区人民政府门户网站
公示现场地点:上海市宝山区通河六村小区公示栏/电梯加装楼公示栏
公示期限:2021年7月5日至2021年7月14日
收集意见截止期:2021年7月21日
意见反馈途径
(1)信函方式:宝山区规划和自然资源局,通讯地址:宝山区宝林路45号105室,邮政编码:201999,电子信箱:fangangongshi@163.com(邮件名称、主题中应标明公示名称)
(2)上海市宝山区张庙街道办事处,通讯地址:上海市宝山区呼玛路800号,邮政编码:200431,电话:021-36110877
项目情况咨询
上海市宝山区通河六村和田小区业主委员会,联系电话:021-56762470,通讯地址:上海市宝山区通河六村246号
08
公示名称
宝山区华灵路1781弄38号多层住宅加装电梯项目设计方案

公示网站:宝山区政府门户网站
公示现场地点:华灵路1781弄康华苑小区公示栏
公示期限:2021年7月5日至2021年7月14日
收集意见截止期:2021年7月21日
意见反馈途径
(1)信函方式:宝山区规划和自然资源局,通讯地址:宝山区宝林路45号105室,邮政编码:201999,电子信箱:fangangongshi@163.com(邮件名称、主题中应标明公示名称)
(2)上海市宝山区大场镇人民政府信访办,通讯地址:大华路1469号,邮政编码:200442 ,联系电话:021-56684155*3222
项目情况咨询
上海市宝山区华灵路1681、1781弄业主委员会(建设单位),联系电话:021-66405290,通讯地址:上海市宝山区华灵路1681弄37号1楼
09
公示名称
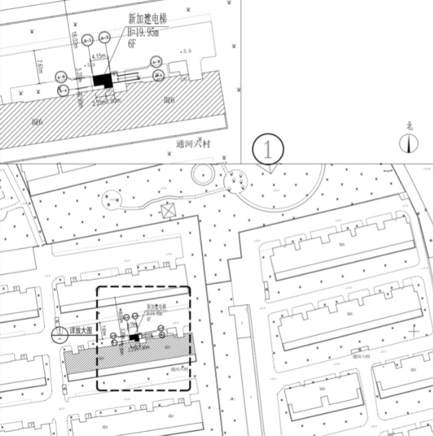
宝山区通河六村121号多层住宅加装电梯项目设计方案

公示网站:宝山区人民政府门户网站
公示现场地点:上海市宝山区通河六村小区公示栏/电梯加装楼公示栏
公示期限:2021年7月5日至2021年7月14日
收集意见截止期:2021年7月21日
意见反馈途径
(1)信函方式:宝山区规划和自然资源局,通讯地址:宝山区宝林路45号105室,邮政编码:201999,电子信箱:fangangongshi@163.com(邮件名称、主题中应标明公示名称)
(2)上海市宝山区张庙街道办事处,通讯地址:上海市宝山区呼玛路800号,邮政编码:200431,电话:021-36110877
项目情况咨询
上海市宝山区通河六村和田小区业主委员会,联系电话:021-56762470,通讯地址:上海市宝山区通河六村246号
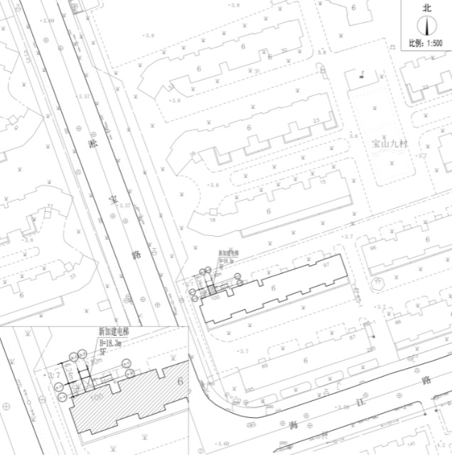
10
公示名称
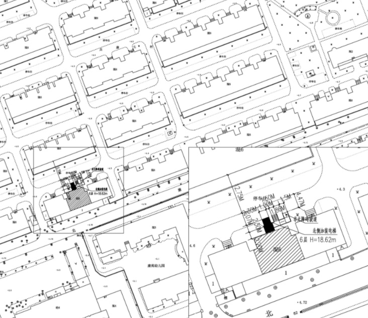
宝山区通河六村157号多层住宅加装电梯项目设计方案

公示网站:宝山区人民政府门户网站
公示现场地点:上海市宝山区通河六村小区公示栏/电梯加装楼公示栏
公示期限:2021年7月5日至2021年7月14日
收集意见截止期:2021年7月21日
意见反馈途径
(1)信函方式:宝山区规划和自然资源局,通讯地址:宝山区宝林路45号105室,邮政编码:201999,电子信箱:fangangongshi@163.com(邮件名称、主题中应标明公示名称)
(2)上海市宝山区张庙街道办事处,通讯地址:上海市宝山区呼玛路800号,邮政编码:200431,电话:021-36110877
项目情况咨询
上海市宝山区通河六村和田小区业主委员会,联系电话:021-56762470,通讯地址:上海市宝山区通河六村246号
11
公示名称
宝山区宝山九村(南块)100号单元号单元多层住宅加装电梯项目设计方案

公示网站:宝山区政府门户网站
公示现场地点:宝山九村(南块)小区公示栏/电梯加装楼公示栏
公示期限:2021年7月5日至2021年7月14日
收集意见截止期:2021年7月21日
意见反馈途径
(1)信函方式:宝山区规划和自然资源局,通讯地址:宝山区宝林路45号105室,邮政编码:201999,电子信箱:fangangongshi@163.com(邮件名称、主题中应标明公示名称)
(2)上海市宝山区牡丹江路1299弄1号楼,邮政编码:201900,电子信箱:bsqyyljd@163.com(邮件名称、主题中应标明公示名称)
项目情况咨询
上海市宝山区宝山九村(南块)业主委员会,联系电话:021-56161605,通讯地址:上海市宝山区海滨五村7号,电子信箱:bsjcywh@163.com(邮件名称、主题中应标明公示名称)
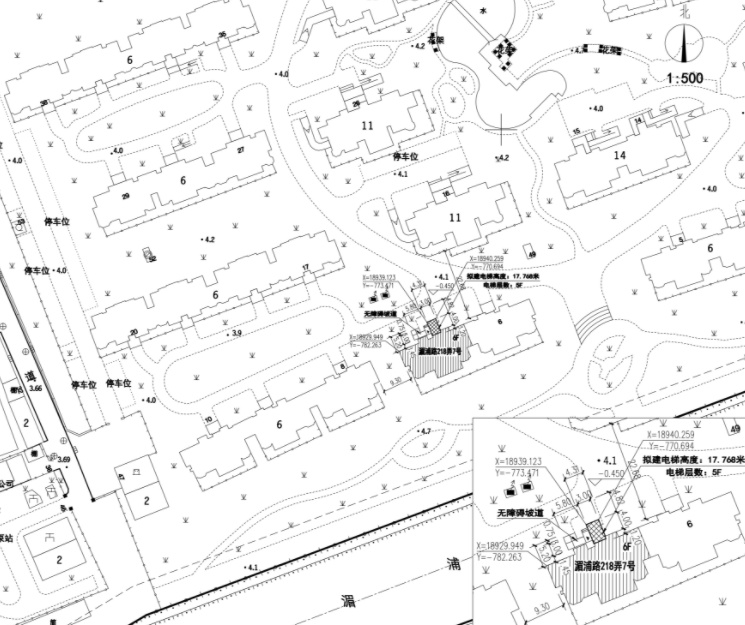
12
公示名称
宝山区湄浦路218弄7号单元多层住宅加装电梯项目设计方案

公示网站:宝山区政府门户网站
公示现场地点:湄浦路218弄小区公示栏/电梯加装楼公示栏
公示期限:2021年7月5日至2021年7月14日
收集意见截止期:2021年7月21日
意见反馈途径
(1)信函方式:宝山区规划和自然资源局,通讯地址:宝山区宝林路45号105室,邮政编码:201999,电子信箱:fangangongshi@163.com(邮件名称、主题中应标明公示名称)
(2)上海市宝山区杨行镇人民政府,通讯地址:上海市宝山区杨泰路386号402,邮政编码:201901
项目情况咨询
上海市宝山区宝地绿洲城业主委员会,联系电话:021-36216568,通讯地址:上海市宝山区湄浦路218弄34号102室
通讯员:张燕娣
编辑:陈诗钰
*转载请注明来自上海宝山官方微信