延安中路1000号——上海展览中心,这幢气势恢宏的俄罗斯古典主义风格建筑,北靠南京西路,南面延安路高架,东起威海路,西到铜仁路,是上海的代表性建筑之一,也是新中国成立后上海建成最早的会展场所。今天,我们就走进这里,一起来阅读吧↓

上海展览中心的由来
新中国成立后不久,国家要在上海举办一次外国经济和文化建设成就的大型展览,并决定造一幢与之相适应的展览馆。1954年5月,上海市政府在哈同花园旧址上开始建造展览馆,至1955年3月建成。1955年3月16日,上述展览会在刚落成的大厦中开幕。


设计彩稿图
落成的大厦坐北朝南,正南为广场,有音乐喷泉。主楼矗立正中,上竖鎏金钢塔,与主塔相辅辉映,金光灿烂。大厦展厅及附属建筑,层层往后延伸,衬托出整个建筑巍峨雄壮的气魄。

整个大厦按中轴线对称布局,由中央大厅、工业馆、东西两翼的文化馆、农业馆及电影院等5个部分组成,总建筑面积58900平方米。建筑之间围合成三个主要的室外广场,手法和形制与欧洲古典主义大型宫殿建筑群相同,十分宏伟。建筑外观属典型的巴洛克建筑风格,尤其是位于建筑群中心的主楼、广场和喷水池。
室内外装饰材料大量使用彩色拼花水磨石地面、水刷石外墙面、铜质配件的钢门窗等。序馆的五座尖塔采用了大面积黄金饰面,在各重要入口和重点部位也采用了大量汉白玉浮雕等高级天然石材、彩色镶嵌玻璃等。


高尖顶上的红玻璃五角星的制作技术要求很高,要求在酷暑严寒与气温剧烈变化的情况下,五角星不变形,不破裂。玻璃工人历经30多次试验,成功制成在120℃至零下12℃的气温区间内不变形的红五角星。由此,建筑高度超过了当时上海最高建筑物──国际饭店,一度是全上海的制高点。

从此以后,这幢建筑成了上海市中心著名的人文景点,上海有了自己举办大型展览的场所,大厦的功能也从单一的举办展览向召开各种重大会议等拓展,这座建筑也日益成为上海许多重大活动举办中心。

1968年,这座大厦改名为上海展览馆,1984年改称现名——上海展览中心,1989年被评为上海市“十佳”建筑单位。1999年,被评为新中国五十年上海十大金奖经典建筑。2005年,被评为上海市第四批优秀历史建筑。
“修旧如故”的修缮,保持原建筑风格
2001年,上海展览中心进行“体检”后进行了大修,工程总量达8万平方米。“体检”后发现的主要问题是外墙表面风化严重,装饰构件脱落、缺损,原有钢筋混凝土存在较多蜂窝、麻面、孔洞、露筋、酥松、碳化等缺陷,建筑物的沉降、倾斜、裂缝等变形现象严重。这次加固大修,定下了“修旧如故”的要求,主要包含“南展北会”功能改造、加固结构、室内装饰和外立面的修复等。


修缮前建筑老旧、受损情况
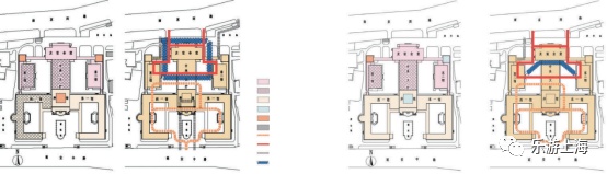
上海展览中心原有场馆功能分配等不够合理,展览、会议与餐饮、办公等功能区域混杂,在主要流线上形成交叉障碍。大修重新整合了建筑的功能布局,改造后“南展北会”的功能分区更加分明。

左:改造前的功能分区和交通流线图 右:改造后的功能分区与交通流线图
为保持展览中心原有建筑装饰艺术特色,大修过程中对各展厅中最具特色的穹顶、天花、金属花饰、吊灯、水磨石地面、大理石墙面等装饰进行了保护性修缮,将各展厅内200余种穹顶花饰、墙面花饰、线角花饰、园柱花饰等加以复原或翻样制模重做,将大多数花纹恢复原貌,再现室内外装饰特色。对于需要修补的石材,坚持到原有石材产地选材使用。遍布整个建筑群的水刷石外墙面、花样繁多的内部装饰(如雕刻、石膏花饰、金属花饰等)、大量彩色水磨石地面、柱面等工艺做法,在修缮过程中通过邀请熟悉水刷石、水磨石等施工工艺的老师傅现场向施工人员传授技艺,来保证修缮质量。


修复后的柱顶花饰、水磨石柱面、汉白玉浮雕、园厅喷泉状柱子与圆形外墙连接、装饰花格
序馆顶部金色尖塔和顶端红五星整修时,首先拆除内部所有砖墙,将荷载减轻到最低,以便将其整体按抗震要求加固,保证建筑的安全;对最具代表性的顶部金色尖塔和顶端红五星的修缮,采用鎏金工艺,使完成后的尖塔泛着柔和的金光,耀眼醒目。


右图:修缮前主楼顶部尖塔
今年初,展览中心再次启动了建筑外立面及钢塔修缮工程。工程在不破坏优秀历史建筑风貌、修旧如旧的前提下施工。目前,钢塔塔尖五角星、塔身、莲花底座等部位的除锈、加固、贴金修缮已基本完成,红色五角星与金色塔身已初现端倪。至本月底钢塔修缮工作全部完成后,金色钢塔必将愈发熠熠生辉。

目前施工现场图
建筑打卡点

1、喷水池广场
总面积为5000平方米的喷水池广场位于上海展览中心正中央,是建筑的一个亮点所在。

2、序馆
由序馆正门进入,抬头即可欣赏到极具欧洲风格的圆形穹顶。上海展览中心的序馆穹顶整体造型优雅,中央区域由金色花束纹样搭配薄荷绿的颜色,美轮美奂。

3、中央大厅
中央大厅是上海展览中心最闪亮的“主角”,无柱形式的圆拱形薄壳屋顶简洁优美、视野开阔,视觉冲击力很强。

4、西一馆1厅
西一馆1厅曾是诸多影片和电视节目的取景地,也算是“网红”了。

5、西一馆14厅
西一馆14厅有着典型的欧洲圆顶建筑风格,承载圆顶的中央单柱装饰为通顶的水晶灯,与水磨石地面交相辉映,别具一格。

6、东一馆1厅
与西一馆对称的东一馆,内在结构却大不相同。两侧水磨石台阶与墨色多廊柱以及水晶灯排列结合,营造出广阔宏伟的空间。

7、东一馆12厅
东一馆12厅是唯一一个采用原木装饰的展厅,檐口、廊柱与门边被手工雕刻木饰包裹,整体风格与众不同。

8、东一馆14厅
该厅穹顶建立在一个方形的平面上,重量则落在四个独立精美的支柱上,建筑风格极具特色。

9、东一馆17厅
走上东一馆一厅的台阶,映入眼帘的是东一馆17厅的镂空雕饰。雕饰采用形态方向多变的涡卷形金色弧线,装饰大量花环、花束纹样,艺术和审美价值并存。
周边打卡点

1、中共上海地下组织斗争史陈列馆暨刘长胜故居
该建筑是一幢沿街的砖木结构的三层楼房。陈列馆占地239平方米,共设有四层展示区:底层复原了文委筹建左联的地点公啡咖啡馆;二、三展馆通过雕塑、场景展示、情景模拟、实物陈列等一系列表现手法,展示了1937年至1949年期间中共上海地下组织发展、斗争的历程;四楼静安文史藏品专题展则集中展示了地下党老同志及其后代珍藏了六十余年的珍贵史料。
地点:愚园路81号
开放时间:周二至周日9:00-16:30

2、常德公寓
常德公寓,建成于1936年。这座80多岁的建筑坐西向东,造型别致,平面呈“凹”字形,建筑共8层,2至5层每层三户,6、7层每层两户,第8层为电梯机房和水箱等用房,最底层原来是汽车间,后来改成复式住宅。
地点:常德路195号

3、1920年毛泽东旧居
这幢两层老建筑坐南朝北,砖木结构,与周围钢筋水泥、玻璃外墙的现代化建筑形成了鲜明对比。这里是毛泽东同志从1920年5月至7月,在沪期间一直居住的地方。
地点:安义路63号
开放时间:周二至周日9:00-16:30
周边游线路推荐
静安公园→中共上海地下组织斗争史陈列馆暨刘长胜故居→静安文化馆→常德公寓→1920年毛泽东旧居→上海展览中心