去年12月底,连接南翔印象城MEGA和轨交11号线陈翔公路站的一座人行连廊开通,方便市民出行的同时,也缓解了地面人流的通行压力。同时另一座横跨陈翔公路,连接印象城和融创•西环中心的人行连廊也已建成,目前尚未启用。

近日,又有好消息传来!除了上述两座已经建成的人行连廊,该片区域又有两座人行连廊开始建设,它们将分别横跨古猗园路和陈翔公路。

▲在建中的2号连廊施工图
以融创•西环中心的商业综合体二楼平台为中心,一座连接轨交11号线陈翔公路站4号口(1号连廊),另一座直达印象城2楼预留出入口(2号连廊),预计今年6月底建成。

▲1号、2号连廊效果图
也就是说,等融创•西环中心项目正式开业后,这两座新建的人行连廊和原来未开通的人行连廊将同时开通。

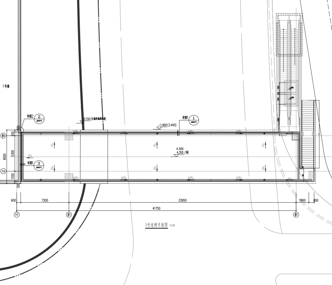
▲1号连廊设计平面图
在建的1号连廊长52米、宽6.7米,2号连廊长65米、宽6.7米,均为钢结构。

▲融创•西环中心目前施工图
据悉,融创•西环中心项目位于南翔镇听雪园路77弄,东至古猗园路,南至陈翔路,西至德园路,北至听雪园路。项目总建筑面积约为16万平方米,包括约5.6万平方米的商务楼、1.4万平方米的商业体配套和3.2万平方米的公寓楼。目前,融创•西环中心楼体幕墙已完成近80%,景观及相关配套功能区也已完成过半,预计今年6月底全面交付。

▲融创•西环中心商业综合体效果图
通讯员:李静
编辑:唐敏、卢泽斌