
近日,2021年宝山区投资促进大会暨重大项目集中启动仪式举行,并宣布30个重大项目总投入200亿元投资落地、集中开工,联东U谷宝山顾村机器人创新港项目位列其中。
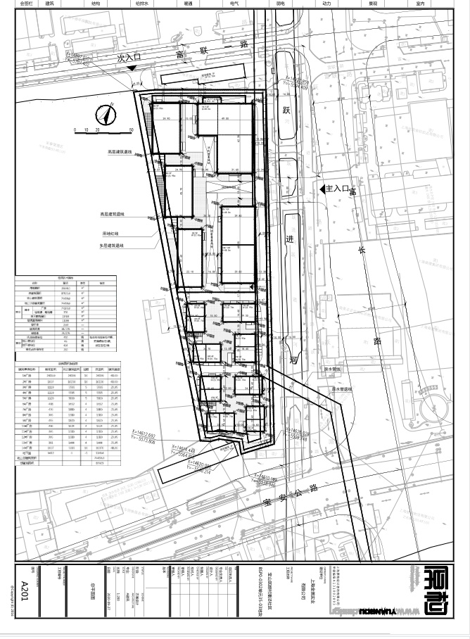
联东U谷机器人创新港项目东至现状河道、南至宝安公路、西至现状部队用地边界、北至富联一路,占地面积36亩,建筑面积5.3万平方米,拟建设12栋标准厂房及配套设施。

项目以机器人和智能制造为主导产业,并结合区域主导产业特点,吸引相关高新技术产业,形成上下游高端产业集群,打造上海高端产业集聚区,集科技研发、工业设计、生产性服务、公共技术平台等动能,持续自主创新、产学研一体、互动循环的新型高科技产业发展平台。

项目总投资6.45亿元,预计2021年实现投资1亿元。目前,项目正在方案评审,成本认定。预计2021年6月开工,施工期24个月,预计2023年6月建成投产,项目达产后,预计实现年产值约6亿,总税收0.52亿元。
记者:施文波
编辑:刘旭
校审:余婧瑶
监制:颜佳佳
*转载请注明来自上海宝山官方微信
