“人民城市人民建,人民城市为人民。”宝山区罗店镇在转型发展的道路是都做了哪些努力?跟着小编去看看吧~
下活城市转型这盘妙棋,打造创新之城
全力打造“美兰湖创新研发集聚区”,将其作为科创中心主阵地的重要增长极。“美兰湖创新研发集聚区”以美兰湖为核心,以北上海生物医药产业园和锦邑产城融合区为两翼,以罗店古镇和美丽乡村为靓丽底板,持续优化提升“两园三轴”产业发展布局,全力打造富有活力的创新城市。

两园三轴规划图
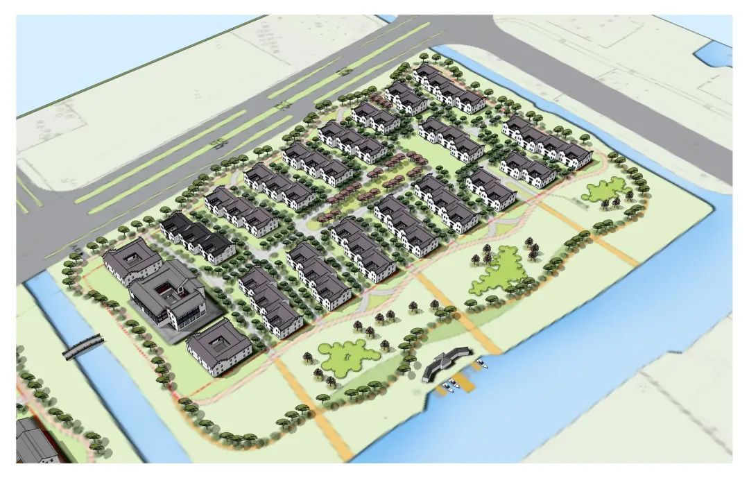
一是北上海生物医药产业园初具形态。紧紧抓住入围全市特色产业园区的契机,坚持“两条腿”走路,做优增量,盘活存量,推动生物医药企业集聚发展。在做优增量方面,今年以来,宝济药业、国盛宝山药谷、斯丹姆医药、惠永药物、正大康方天晴等尖端项目相继签约落地、开工建设。在盘活存量土地方面,采取引入社会资本、严格项目准入等多种方式,盘活大量土地定向用于引入生物医药企业。

北上海生物医药产业园核心区规划图
宝济重组蛋白药物项目

复兴医药集团朝晖药业项目

国盛生物医药产业园项目

景泽生物项目

二是锦邑产城融合区蓄势待发。前身是富锦工业区,而今转型规划将着力突出“小而美”、有特色,产业优先、产城协同,建设战略性新兴产业汇聚、高品质居住、多元商业配套的产城融合示范区。近日,该区域第一块商品房用地被金融街成功摘牌,拉开了锦邑产城融合区转型开发的序幕。

上海锦邑产城融合区效果图
三是沪太路经济发展轴更具实力。沪太路是宝山区的城镇发展轴,镇域范围内与轨道交通7号线并行,有美兰湖、罗南新村两个轨道站点,周边区域均是建成区。近年来,宝山区罗店镇积极补上产业载体、商业配套的短板,依托轨道交通站点,加快建设了中集美兰智城项目、天瑞金MAX科技园项目。同时积极推进国际家居装饰设计体验中心、国际进口商品交易中心、“北国之椿”国际高端康养社区等项目建设,努力打造成为新经济发展、新动能培育、新业态繁荣的经济发展轴。

中集美兰智城

天瑞金MAX科技园

国际进口商品交易中心

国际家居装饰设计体验中心

“北国之椿”国际高端康养社区
四是潘泾路人文生态轴更有活力。潘泾路是南北主干道,串联起锦邑产城融合区、高尔夫球场、北上海生物医药产业园,其被定位为“健康大道”。通过文化旅游休闲项目建设,补区域功能短板,带动产城结合、产人结合、产融结合的新兴产业发展。推进美兰湖硅谷项目建设,引入研发总部机构。建设国际品牌酒店、精英企业家会客厅,打造“桃李春风”小镇。

国际品牌酒店效果图

精英企业家会客厅效果图
五是杨南路文体产业轴更富魅力。发挥高尔夫球场的带动效应,引入健康、休闲、体育、亲子等元素,打造杨南路靓丽天际线,俯瞰1160亩高尔夫球场。

美兰湖国际高尔夫球场
做好精细建管这篇文章,打造品质之城
建设人民城市,要始终坚持高起点规划、高质量建设、高水平管理。以绣花般的细心、耐心、卓越心,推进城市精细建管,让城市更有温度、更有内涵、更见品质,让每个人都能感受到“城市,让生活更美好”。
一是攻坚克难,全面推进农民动迁安置房建设。总建筑量70万平方米的A9、A10、A11等7个动迁房基地已开工建设,陆续结构封顶。明年完成未曾安置过房源的313户居民在外过渡问题,三年内彻底解决动迁居农民在外过渡问题。


大居D块动迁居民登记入户
二是问题导向,加快推进农民集中居住。加快推进921户“兵营式”危房改造,让更多老百姓告别“老破旧”。按时完成光明村、毛家弄村等444户农民集中居住签约任务。在天平村试点推出天舒苑人才公寓,既有效提高农民的财产性收入,又很好解决生物医药园区企业人才“安居”问题。

光明村兵营式房屋改造成效

天舒苑人才公寓
三是建管并举,全力推进市政设施建设。实施美兰湖区域10条道路改造工程,完成7万平方米北欧风情街改造,全面提升美兰湖核心区的城市风貌。完成44条村道提档升级项目,年内全面完成33个住宅小区的雨污混接改造工程。全面落实河长制,实施13条河道整治,年内实现全面消除劣V类水体。

十条道路改造升级工程示意图
绘就乡村振兴这幅画卷,打造生态之城
建设人民城市,要始终坚持生态优先、推动绿色发展。让良好生态环境成为人民生活的增长点、经济社会健康发展的支撑点、展现镇域良好形象的发力点,把罗店建设成为天更蓝、水更清、地更绿的生态之城。
通过四个三,走四条路,实现十个起来,在此基础上谋划乡村振兴的新蓝图。一是片区联动,着力创建美丽乡村示范片区。组团式发展,以“拆违章、清人口、重管理”为核心,重点打造天平村1个市乡村振兴示范村、毛家弄村1个市美丽乡村示范村、3个区美丽乡村示范村(束里桥、蔡家弄、北金)、3个美丽乡村达标村(南周、西埝、东南弄),让乡村成为城市的靓丽底板。

天平村

毛家弄村
二是创新特色,加快推进农村产业融合发展。持续做大做强“永大”“汉康”等农业龙头企业,打造优质农产品品牌;在天平村、联合村试种“红美人”,在联合村种植金罗柚等果品,在张士村种植百亩芍药牡丹,打造集农业观光、医药、教育等多种功能于一体的“罗店探花湾”。围绕龙舟、彩灯、花神庙会等优秀文化,谋划推出一批乡村旅游景点和特色旅游产品。




三是统筹发展,不断壮大村级集体经济。对农村边缘地区土地、效益较差的土地进行减量化,统筹各村的优质资源集中用于优质项目建设,让全镇村民分享改革发展和制度创新的成果。
唱好民生优先这台大戏,打造人文之城
建设人民城市,要始终坚持“人民至上”理念,把共享发展成果、增进人民福祉作为我们一切工作的出发点和落脚点。把握人民城市的人本价值,聚焦解决群众最期盼、最迫切的问题,更好满足人民群众对美好生活的向往。
一是主动作为,积极化解历史遗留问题。依法依规拆除闻道园2000平方米“大棚房”,完成爱玛宫59.6亩违法用地整治。
二是真抓实干,努力办好人民满意的教育。优化教育资源布局,美兰湖九年一贯制学校与世外教育集团签署托管协议,促进区域优质教育的均衡发展。

鸟瞰美兰湖九年一贯制学校
三是文化兴镇,倾力打造文香罗店。按照“挖掘、梳理、修复、鼎新、传承”的要求,传承保护非遗项目(如宝山寺、天花玉露霜、鱼圆等),重现历史文脉底蕴,全面唱响“春有花神秋有画、夏有龙船冬有灯”的四季文化之歌。

宝山寺


四是综合防控,全力守护城市运行安全。积极开展社会治安、行业乱象专项整治行动,全力推动“雪亮工程”“平安宝山智联网”建设。深入持久开展安全隐患大排查、大整治,用100%的严谨杜绝1%的疏漏,确保社会大局平稳有序。
谱写社会治理这首合奏曲,打造和谐之城
建设人民城市,要始终把握人民城市的主体力量,紧紧依靠人民推进城市建设,打造“党建引领、共建共治、睦邻友好、幸福共享”的社会治理共同体。镇党委书记瞿新昌在调研中强调,当前我们正在开展“四史”学习教育,要与推动人民城市建设结合起来,引导党员干部从历史中找答案、从现实中找参照,汲取历史经验和精神力量,当好善作善成的实干家,力争在罗店镇的国家新型城镇化建设中展现新作为。
一是党建引领,塑造社会治理活的灵魂。线上依托“社区通”,线下结合“四三五融六必访”群众工作法,双轨并进,打造党建引领下的共建共治共享的社会治理模式。全镇相继建成古镇、美罗家园睦邻中心和22个睦邻共享站,充分激发社区活力,让“陌邻”变“睦邻”,已成为社区治理的样板空间和为民服务的品质窗口。

古镇睦邻中心


二是“惠”从“党”来,打造推动乡村振兴的党建“引擎”。按照乡村振兴战略总要求,完成“8个有”的阵地建设,重点落实“8个一”的内容,实现农村党建服务站全覆盖。各农村党建服务站坚持党建引领,通过教育管理、党建活动、宣传展示、服务群众、资源整合等五大平台作用发挥,组织开展内容丰富的党群活动,不断夯实党的执政基础。


三是精细管理,打造社会治理宜居生活。积极引入优质社会组织资源,同步培育本土社会组织,组建近千人的志愿者队伍。引入第三方社会力量,填补公共服务资源不足,以共建共治共享的方式开展公共服务和社区治理,以“绣花”精神推进城市精细化管理再上新台阶。


优秀志愿者/团队代表
通讯员:白龙
编辑:刘旭
*转载请注明来自上海宝山官方微信