
好消息!!!
新泾镇第一家嵌入式为老服务中心
新泾·乐松长者驿站
将于本月底正式开放
在这里,跟同龄人
一起吃饭、插花、理疗
快乐地享受美好的晚年生活~

地址:甘溪路416号(近福泉路)
时间:周一至周五8:30~17:00
电话:962255
乐松长者驿站坐落在甘溪路福泉路路口,约150 平方米的狭长空间,经过合理规划布局变得小巧又精致,养生餐厅、日间照料室、多功能活动室、健康小屋、康复理疗室、养老顾问区、认知症照护区、观影区等一应俱全。目前驿站已进入到最后的软装细化阶段,6月底将正式对外开放。我们先看效果图吧→

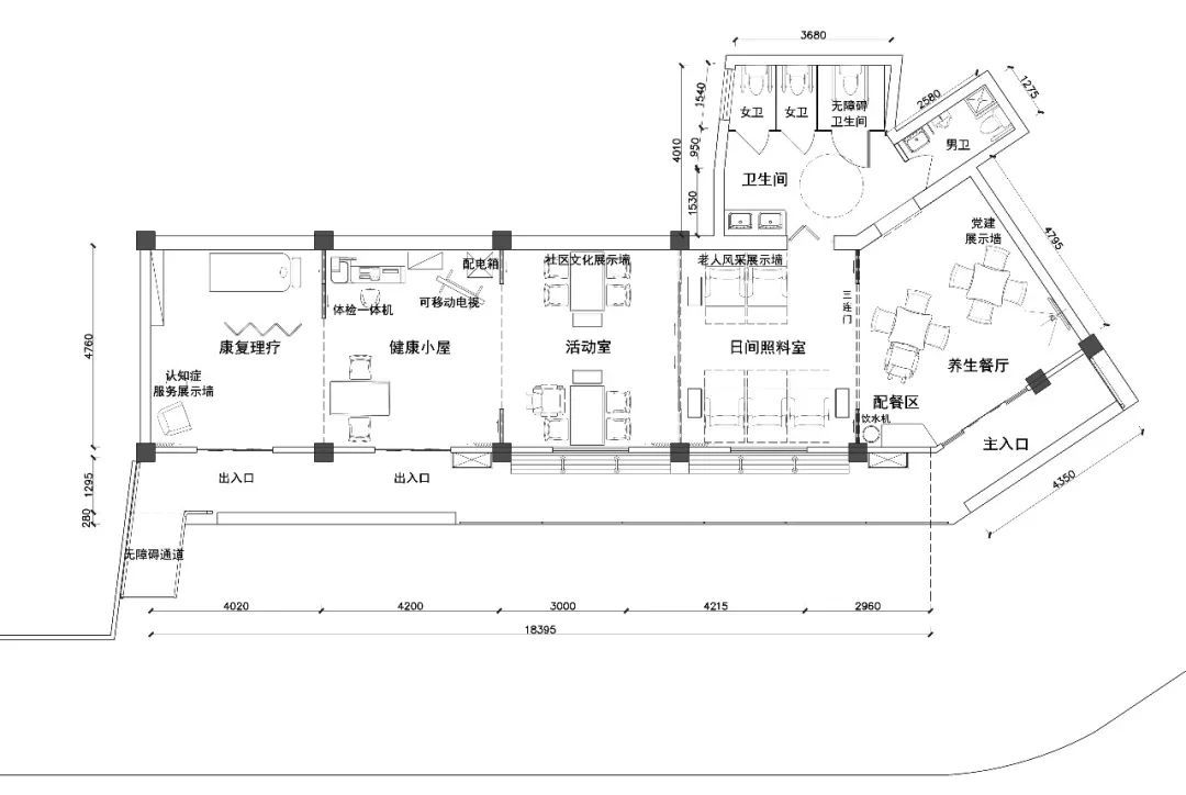
乐松长者驿站平面图

乐松长者驿站正面效果图
驿站内外通体采用原木色,营造出明亮又温馨的家庭氛围。不仅如此,这里的服务项目也温暖贴心,营养助餐、日间照护、医疗保健、养老政策解读、生活照料、文化娱乐等助老服务丰富多样,让老人在家门口得到专业的服务与照料。
01 养生餐厅

养生餐厅位于主入口处,内设用餐区、配餐区、茶水区。据悉,这里提供的午间套餐每份15元,含1大荤、1小荤、1蔬菜、1主食,可堂食或外带,切实满足老年人就近用餐和送餐的需求。具体助餐详情每周会提前在社群和驿站门口张贴发布。
02 日间照料室

往里走,是4个相互连通又独立的小空间。第一间是日间照料室,左右两边都配备了电动躺椅,茶余饭后在此休憩,格外惬意。日间照料室将为长者提供生活照顾、慢病管理、医疗保健、日常社交、文化娱乐等服务,此外每月还提供一次理发、扦脚服务。
03 多功能活动室

多功能活动室今后会不定期举办各种活动如美食制作、插花、种植、手工diy等,丰富老年群体的业余生活。
04 健康小屋

健康小屋则配备了体检一体机、血压血糖测量仪等仪器,为老人提供量血压、测血脂、检查身体等服务,时刻关注老年群体的身体健康。
05 康复理疗室

康复理疗室位于最里间,有独立的出入口,门外铺设了无障碍通道供老人自由进出。除了提供艾灸热敷、吸氧等服务外,理疗室还专门辟出一个角落,为阿尔兹海默症患者提供预防干预服务。老人可通过认知障碍筛查干预一体机、游戏宝盒进行自我测试或记忆力康复训练。
据悉,该中心投入使用后,可辐射绿八、绿一、华松以及淞四4个居民区,为上万名老人提供康养服务,也将丰富周边老旧小区的活动空间。
作为“新泾镇15分钟社区美好生活圈”的重要一环,乐松长者驿站除了能够为老人提供日间照料、膳食服务外,还将搭载其他多种类型的服务,包括社区文化活动、公益便民集市、职业实训、创业就业指导等等,给周边居民提供实实在在的服务。
图片来源新泾镇
文字:程清慧
编辑:李 博
*转载请注明来源于“上海长宁”
上观号作者:上海长宁