2019年,市教委制定了《上海市初中毕业升学体育考试工作实施方案》,乒乓球、羽毛球、网球、武术作为新增项目纳入升学体育考试范围。这几个体育新增项目如何考?不少家长为之焦虑。小体之前已为大家梳理了乒乓球项目,详情请戳:看《荣耀乒乓》想自己拿球拍?中考乒乓这样考,今天小体就来为你解读羽毛球、网球、武术这三个新增项目,一起往下看吧!
羽毛球考试方法说明
01
场地器材
1.场地
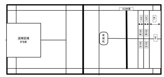
13.4米×5.18米室内标准羽毛球单打场地,在距后场端线前3米处,设置一高3.5米标志线,距后场端线前1米、1.5米、2米地面处各设一标志线。发球机放置在一侧半场前发球线前沿至中线1.5米处。发球机送球落地区域为发球机异侧半场底线中点向两侧各1.5米、向内3米所构成的3米×3米的正方形区域。

2.器材
发球机,出球速度、出球频率可调,储球容量不小于200支,定点发球偏差距离不超过50厘米,满足考试要求;测试用球为77号;3.5米标志杆2根,5.18米标志线1条,3米、5.18米标志带各3条;标准网柱(附网),符合gb/t 19851;球拍考生自备,考点提供备用;鼓励探索设置智能计分系统。
02
测试方法及要求
1.考试开始,由羽毛球发球机送球,频率为20个球/分钟;以高远球发至规定区域内,考生以高远球将球击至对面单打场地有效落地区域内,考生回球须越过空中标志线。
2.每名考生连续击球20个,且只进行一次测试。
3.因机器供球偏离规定区域,考生可以放弃本次击球,本球无效,不计算击球次数;如考生击球,该球有效,继续考试。
4.当无效供球达到三次及以上时,允许重新测试。
03
计分与标准
1.落地有效区域分值划分
女子落地有效区域分值划分:从底线向内1米为6分区,1-1.5米为5分区,1.5-2米为4分区。
男子落地有效区域分值划分:从底线向内1米为6分区,1-1.5米为4分区,1.5-2米为3分区。
2.计分方法
男子测试分数=6分区个数×6 + 4分区个数×4 + 3分区个数×3
女子测试分数=6分区个数×6 + 5分区个数×5 + 4分区个数×4

网球考试方法说明
01
场地器材
1.场地
23.77米×8.23米的标准单打网球场。发球机放置在底线中点区域,球落在发球线后50厘米×50厘米的正方形正手击球区域内。
注:单打场地的球网至发球线的前半场区域是8分区(发球线属于前半场区域);单打场地的发球线至底线的后半场区域是10分区(底线属于后半场区域)。
2.器材
发球机,球速40千米/小时,出球频率3秒/球,仰角20度,储球容量不小于150个,出球速度和出球频率均可调,满足考试要求;网球:中速球,质量56.0~59.4克,弹性1350~1470毫米,符合gb/t 22754;标准网柱(附网),符合gb/t 19851;球拍考生自备,考点提供备用;鼓励探索设置智能计分系统。
02
测试方法及要求
1.考试开始,由在底线中点位置的网球发球机隔网送球,频率为3秒/球、球速40千米/小时、仰角20度,发送至对面发球线后50厘米×50厘米的规定区域内。考生站在对面底线适当位置,用球拍以网球正手技术将落地一次的球,击过网至单打场地规定区域内。
2.每名考生连续击球12个,且只进行一次测试。
3.因机器供球偏离规定区域,考生可以放弃本次击球,本球无效,不计算击球次数;若考生击球,该球有效,继续考试。
4.当无效供球达到三次及以上时,允许重新测试。
03
计分与标准
1.计分方法
当击球过网后,球的第一落点在前半场区域内计8分;第一落点在后半场区域内计10分;若该球出界或下网,则计0分。
测试分数=8分区个数×8+10分区个数×10。
2.测试标准

武术考试方法说明
01
场地器材
场地设置需安全合理;测试场地长不小于14米、宽不小于8米,四周内沿应标明边线;配备哨子。
02
测试内容
少年连环拳
03
评价标准
9.0—10分
熟练完成全套动作,动作规范,方法正确,劲力充足,用力顺达,力点准确,手眼身法步配合协调,节奏分明,精神饱满,没有遗漏和失误动作。
7.5—8.9分
顺利完成全套动作,动作较规范,方法较正确,劲力基本充足,手眼身法步配合较协调,节奏较分明,精神集中,没有遗漏和明显失误动作。
6.0—7.4分
能够完成全套动作,动作基本规范,方法基本正确,手眼身法步配合基本协调,节奏基本分明,没有明显遗漏和失误动作。
5.9分及以下
不能完成全套动作,动作有明显错误,劲力不足,节奏混乱,无精打采,多次出现遗漏和失误动作。
04
基本要求
每位考生有1次测试机会。
来源:上海教育官网
题图:李铭珅
上观号作者:上海体育