
上海按照中央乡村振兴战略“产业兴旺、生态宜居、乡风文明、治理有效、生活富裕”总要求,围绕建设“美丽家园、绿色田园、幸福乐园”的目标,积极探索适应本市乡村振兴的创新举措。我们总结、提炼了首批乡村振兴示范村在土地利用和规划建设方面的探索经验,希望这些经验能够为积极推进乡村振兴战略实施工作的村镇及部门提供启发和借鉴,共同将乡村振兴工作推向新阶段。上期给大家介绍了水库村的青年之家项目,这期将介绍其尚品书院。
水库村村民尚品书院利用原村旧谷场仓库建筑,改造成为以书院为中心的村民综合文化场所。提供免费阅读书店、国学讲座、文化交流等内容。书院占地面积约1050平方米,建筑面积约为570平方米,2019年8月竣工。
1
基地简介
场地基本情况
场地基本情况:
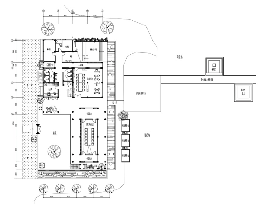
基地面积:约1050平方米,原有厂房占地面积165平方米、41.2平方米
基地临界界面(南):9.3米
基地临河界面(北):5.7米
建筑面积约:570平方米

改造前尚品书院(实景图)
2
作品介绍
设计理念
新时代的乡村田园不仅要有良好的生态风貌,更应留住具有地域特色的文化韵味,而乡村公共文化空间就是最好的载体。尚品书院,即是为水库村打造的文化活动共享空间,致力于为当地村民提供文化活动,享受阅读乐趣以及举行公共活动的处所。同时,期待城市居民也能来这里放松身心,让邻里文化得到真正的回归。

鸟瞰图

平面图
建筑亮点
尚品书院所在地原是水库村旧谷场仓库,在原有的基地面积上加盖并改造而成,采用传统江南民居建筑风格,使建筑与水库村的水乡风情相融。书院坐落于水库村荷花塘畔,朵朵荷花点缀其中,木制栈道延伸至荷塘深处,成为人们亲近自然、闲情逸致的好去处。为了使传承与创新在此共存,书院里设有丰富的藏书和休闲阅读空间,也有能兼容国学培训、茶道体验、分享讲座和会议等多功能空间。
建筑整体设计材料简洁,大面积采用清水混凝土做法,大大节约了建筑造价成本,实现环保可持续发展。

活动平台(效果图)

阶梯式观景台(效果图)

建筑外观(效果图)
3
实施成果
尚品书院一层设置室外庭院,二层设有回廊公共空间,为村民增加更多的共享活动场所;外部设置了阶梯式观景休息平台、书箱式休闲区、下沉式休闲区,创造了丰富的观景体验和更多的休憩空间;书院试图通过空间的组合与合理利用来引导村民回归更多的邻里文化,为打造最美乡村而努力!


建筑外观(实景图)

书院入口(实景图)


书院内院(实景图)

end
下期预告
下期继续为大家讲述水库村长堰路两侧景观改造,敬请期待!
上观号作者:上海规划资源