
上海按照中央乡村振兴战略“产业兴旺、生态宜居、乡风文明、治理有效、生活富裕”总要求,围绕建设“美丽家园、绿色田园、幸福乐园”的目标,积极探索适应本市乡村振兴的创新举措。我们总结、提炼了首批乡村振兴示范村在土地利用和规划建设方面的探索经验,希望这些经验能够为积极推进乡村振兴战略实施工作的村镇及部门提供启发和借鉴,共同将乡村振兴工作推向新阶段。上期给大家介绍了水库村的村民中心项目,这期将介绍其村民驿站暨综合为老服务中心。
村民驿站利用老村委会建筑,改造成为以日间照料、文化活动、村民聚会为主的综合性生活服务中心。村民驿站总用地面积约4080.65平方米,总建筑面积约2079平方米,建筑密度27.99%,容积率0.51,绿地率35.75%。
1
基地简介
场地基本情况
基地面积:约4080.65平方米,原有厂房占地面积225平方米、143平方米
基地临界界面(南):30.34米;17.24米
基地临河界面(北):60.39米
基地临界界面(东、西):68.60;68.91米
基地原有南侧老村委建筑、北侧厂房一栋,皆为双坡屋顶。村民驿站利用老村委会建筑,改造成为以日间照料、文化活动、村民聚会为主的综合性生活服务中心。

原有建筑(实景图)
2
作品介绍
设计理念
基地处在入村主干道北侧,周边为村民自建住宅,由于宅基地规划原因,所有住宅都退后南侧道路,北侧背靠河道而建。这形成了整体较为齐平,单元各不相同的民宅体量,也形成了特有的村落地景。

轴测图

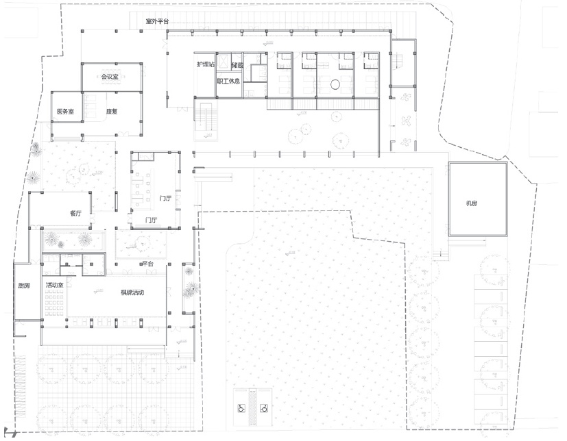
一层平面图
因此,设计将二层主体建筑尽量靠北沿河布置,延续了村落整体的建筑-场地格局。场地原为一处村镇小工厂,沿路仍保留了一栋单层厂房。设计保留了厂房体量和大门位置,存留了村民习惯的场地认知,以其作为流线的起点。

内院(实景图)
与城市中的老年中心不同,村镇的老人大多仍保留喜欢在户外空间活动的习惯。因此建筑采用了小体量组合的方式,提供了多路径、多层次的空间漫游体验,为老人提供了大量的室外活动场所。从沿街入口到河道的流线体验,也与场所的地景特质紧密相连。

入口回廊(实景图)
建筑整体材料简洁,突出形体本身的特点。半室外空间采用了两米三高度的连续廊道,提供了亲切近人的场所感知。

内院回廊(实景图)
3
实施成果
建筑采用了一系列室外连廊,提供了丰富的半室外活动场所,同时也形成连续的漫游空间。连廊从沿街将人流引致入口,穿越一系列小型院落,到达北部的河岸,形成了独特的地景体验。

餐厅(实景图)

接待厅(实景图)
建筑整体采用白色粉刷,建筑体量分散处理,与周边农宅形成连续性的景观。

西立面(实景图)
end
下期预告
下期继续为大家讲述水库村青年之家项目,敬请期待!
上观号作者:上海规划资源