关注金桥地区发展动态的小伙伴们注意啦!
为保障公众参与城市规划的权利,更好地维护公众利益,根据《中华人民共和国城乡规划法》、《上海市城市规划条例》及《上海市制定控制性详细规划听取公众意见的规定》的要求,对《浦东新区y00-1201单元(金桥副中心核心区)控制性详细规划局部调整》草案予以公示。详见↓

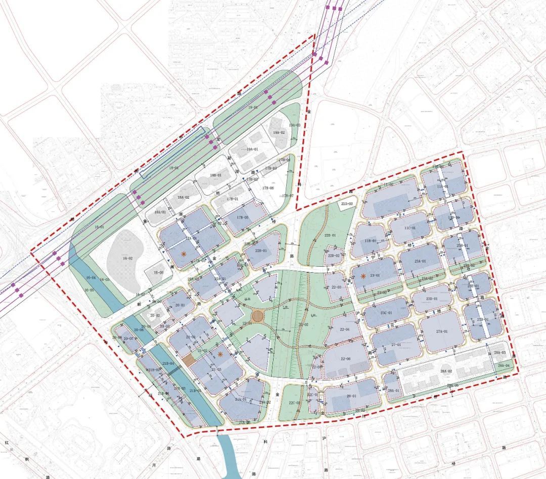
金桥副中心示意图
规划名称
《浦东新区y00-1201单元(金桥副中心核心区)控制性详细规划局部调整》(草案)
组织编制单位
上海市浦东新区人民政府、
上海市规划和自然资源局
01
规划范围
本次规划四至范围:东至金湘路、南至川桥路、西至中环路、北至杨高中路-金科路-新金桥路,总面积146. 75公顷。
02
已批规划情况
规划范围原用地功能以工业为主,沿金科路局部布局商贸用地。

本次规划图则
03
功能定位
根据《上海市浦东新区国土空间总体规划(2017-2035)》,规划范围为金桥城市副中心核心区,聚集商务办公、文化休闲、会议展示、创意研发、生态游憩等主要功能。本次规划定位为具有全球影响力的、创新智造云集、综合服务完善、富有国际魅力的高品质副中心核心承载区。
04
用地布局
规划落实“科技商务+双环驱动”总体布局,规划建设金桥中央公园,西半环布局科技商务功能,东半环布局科技研发功能。
本次规划提升公共绿地、文化体育设施等公益性用地比例,规划建设用地面积约143. 60公顷,其中居住用地约6. 04公顷,商业商办用地约41.47公顷,教育科研设计用地约13. 97公顷,文化用地约4. 27公顷,工业用地约4. 14公顷,道路广场用地约38. 03公顷,市政设施用地约0.28公顷,绿地约35. 40公顷。
05
开发规模
规划落实功能定位要求,以iv级-v级开发强度分区为主,围绕轨道交通站点聚集城市功能,规划总建筑面积约292.49万平方米。
06
附加图则
本次附加图则结合城市设计成果,对规划范围的公共空间、地下空间、建筑形态、交通空间等要素进行优化完善,展现金桥城市副中心的空间形象。

建筑形态
屋顶形式:以平屋顶形式为主,除部分公园和滨水周边建筑。
建筑材质:以混凝土、钢与玻璃材质为主。
建筑风貌:以简约、现代风格为主导,建筑色彩明亮雅致。
建筑功能:提倡功能混合。裙房建筑建议以商业、文化娱乐、餐饮等业态为主,高层塔楼建议以商务办公、酒店等功能为主。
公共空间
1.21a-01、21-03、21-01、22a-01、22b-01地块连通中央公园的二层连通道需确保整体平缓连通,并24小时公共开放。
2.中央公园内的公共通道以步行为主,22-02、22d-01、22c-02地块内南北向公共通道最小宽度8m,并设置非机动车专用道。
3.22-01地块内建议结合文化建筑功能,在绿化场地内设置休闲文化活动空间。22-02地块内建议结合绿地景观设置水景。
4.中央公园内金科路下穿区域建议以草坪为主,结合绿化设置文体活动场地。
5.建议中央公园标高为吴淞高程+4.0米至+10.5米,具体数值结合实施方案来确定。

公示时间:2020年7月31日至2020年8月29日,2020年9月3日截止。
如对规划草案有反馈意见,请在2020年9月3日前将书面意见邮寄或传真至浦东新区规划和自然资源局。
公众意见邮集地址:锦安东路475号2号楼规划管理处。
邮政编码:201204。
传真:20742587。
请注明“浦东新区y00-1201单元(金桥副中心核心区)控制性详细规划局部调整公示反馈意见”。
点击阅读原文,了解更多
信息来源:浦东发布
上观号作者:中国上海自贸试验区